New construction | Commercial |
For sale
Yerevan, Kanaker-Zeytun, Sevak St
ID 194247
| $ 121,000 |
The price is not final, can be changed.
View count - 443
Mortgage calculator- Into building
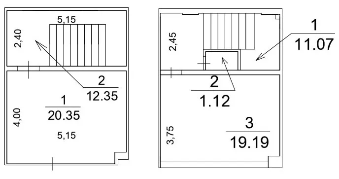
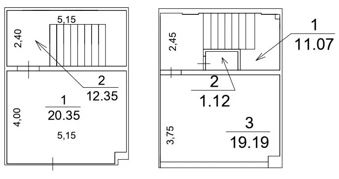
64 m2
1 / 18
3 M
Building type
Monolit
Property condition
Zero condition







